DCL ARCHITECTS
DESIGN COLLABORATIVE LIMITED
Site Navigation
[Skip]
Home
Firm History (1990 - Present)
Partnerships
Process
Residential
Commercial
ADA Projects
Out Buildings
Furniture & Fixtures
Theater Set Design
Architectural Study Models
Affiliations
Contact Form
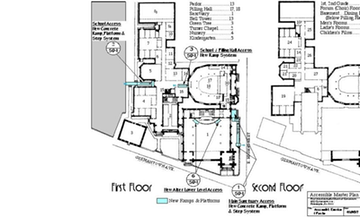
Proposed Accessible Entrance Modifications
Previous
Next
List
© DCL Architects 2016
[Back To Top]